13429 Lisa Dr

Hudson, FL 34667

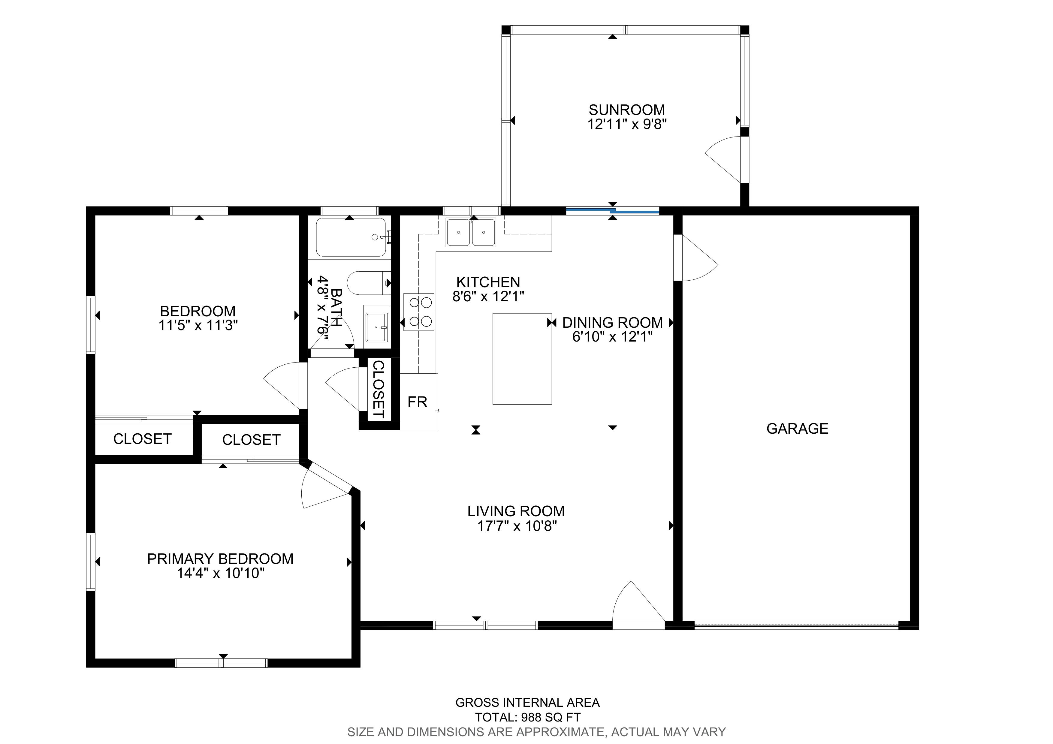
  • 2 Beds
  • 1 Baths
  • 988 Sqft.

Listing Description

               🏡 13429 Lisa Dr, Hudson, FL 34667 Draft Property Overview
✔ Single-Family Home (Canal Front)
✔ 2 Bedrooms • 1 Bathroom • ~988 sq ft (public record)
✔ Directly on a canal with Gulf access; ideal for boating, fishing, and waterfront living

🌟 Features & Highlights
✔ Block construction with low-maintenance exterior
✔ Bright open-concept living and dining area with water views
✔ Kitchen with ample cabinetry and functional layout (verify finishes/appliances)
✔ Primary bedroom with closet storage and natural light
✔ Second bedroom suitable for guests, office, or hobbies
✔ Updated flooring/paint in portions of the home (verify by listing)
✔ Waterfront backyard with seawall (verify), boat dock potential, and space for outdoor seating
✔ Covered carport or driveway parking (verify configuration)
✔ Large enclosed lanai or Florida room (if applicable—verify), adding flexible indoor/outdoor living
✔ Rare affordable Gulf-access property—ideal for seasonal residents, boaters, or investors

🌊 Water Access & Views
✔ Located directly on a canal with quick access to the Gulf of Mexico
✔ Ideal for kayaking, paddleboarding, fishing, or boating
✔ Daily sunset opportunities with nearby Hudson Beach

📍 Location & Surroundings
✔ Situated in a quiet waterfront neighborhood in Hudson
✔ Minutes to Hudson Beach, marinas, waterfront restaurants, and parks
✔ Close to grocery stores, shopping plazas, and medical facilities along US-19
✔ Easy access to Spring Hill, Port Richey, and Weeki Wachee

⚡ Zoning & Utilities
✔ Zoning: Residential (verify with Pasco County)
✔ Utilities: Public water, sewer, and electric
✔ Central HVAC or wall units (verify system type)

🎓 Schools (verify local zoning)
✔ Northwest Elementary (PK–5)
✔ Hudson Middle School (6–8)
✔ Hudson High School (9–12)

💰 Price & Taxes
✔ Annual Property Taxes: ~$2,000–$2,800 (verify Pasco County records)

📊 Community Snapshot (approx. 1-mile radius)
✔ Median Household Income: ~$48,000–$58,000
✔ Median Home Value: ~$240,000–$300,000 (waterfront premium varies)
✔ Average Age: ~50+ years

✨ Summary
13429 Lisa Dr is a rare 2BR/1BA canal-front block home offering true Gulf-access living at an affordable price point. With nearly 1,000 sq ft, flexible indoor/outdoor living, and direct canal frontage, this property is perfect for boating enthusiasts, snowbirds, investors, or anyone seeking a relaxed waterfront lifestyle. Located minutes from Hudson Beach and essential amenities along US-19, it delivers both convenience and Florida coastal charm.

🏡 Hudson, Florida Community Overview
Hudson is a relaxed Gulf Coast community known for its boating culture, marinas, sunsets, and affordability—popular with retirees, outdoor enthusiasts, and seasonal residents.

🏡 Real Estate & Housing
Hudson offers:
🏠 Waterfront canal homes with Gulf access
🌴 Affordable single-family neighborhoods
🌊 Marinas and beachfront properties near Hudson Beach
💰 Lower home prices than most Tampa Bay coastal cities

✅ Why People Love Hudson
✔ Direct Gulf access for boating & fishing
✔ Affordable coastal lifestyle
✔ Strong local dining and waterfront entertainment
✔ Quiet neighborhoods with mature trees
✔ Convenient access to US-19 shopping and medical centers

🏖️ Lifestyle & Attractions
✔ Hudson Beach—white sand, boardwalk, and waterfront restaurants
✔ SunWest Park—lagoon, sandy beaches, water activities
✔ Werner-Boyce Salt Springs State Park—kayaking and wildlife viewing
✔ Local marinas and fishing charters

📊 Demographics & Economy
Population: ~24,000
Median household income: ~$50,000
Key industries:
• Healthcare & senior services
• Marine & coastal recreation
• Retail & local businesses

🎓 Education & Schools
✔ Served by Pasco County School District
✔ PHSC (Pasco-Hernando State College) nearby

🚗 Transportation & Accessibility
✔ US-19 provides direct north–south access
✔ Suncoast Parkway nearby for Tampa commutes
✔ Tampa International Airport – ~50 minutes

☀️ Climate & Outdoor Living
✔ Warm, sunny weather year-round
✔ Ideal for boating, fishing, kayaking, and beach living
✔ Frequent community events and waterfront festivals

Hudson offers a blend of Gulf Coast beauty, boating access, affordability, and laid-back Florida charm—making it a top choice for seasonal and full-time waterfront living.
            

Map